Plug and Play Commercial Office Space Having 14 Work Stations, 1 Manager Cabins,1 Conference Room, Reception,1 Car Parking, 2 Washrooms, Lift, Ac, Security, On Site Manager 100 DG backup.




















Plug and Play Office Space Having 36 Work Stations, 3 manager cabins, 1 Conference Room, Pantry, reception, 2 washroo....

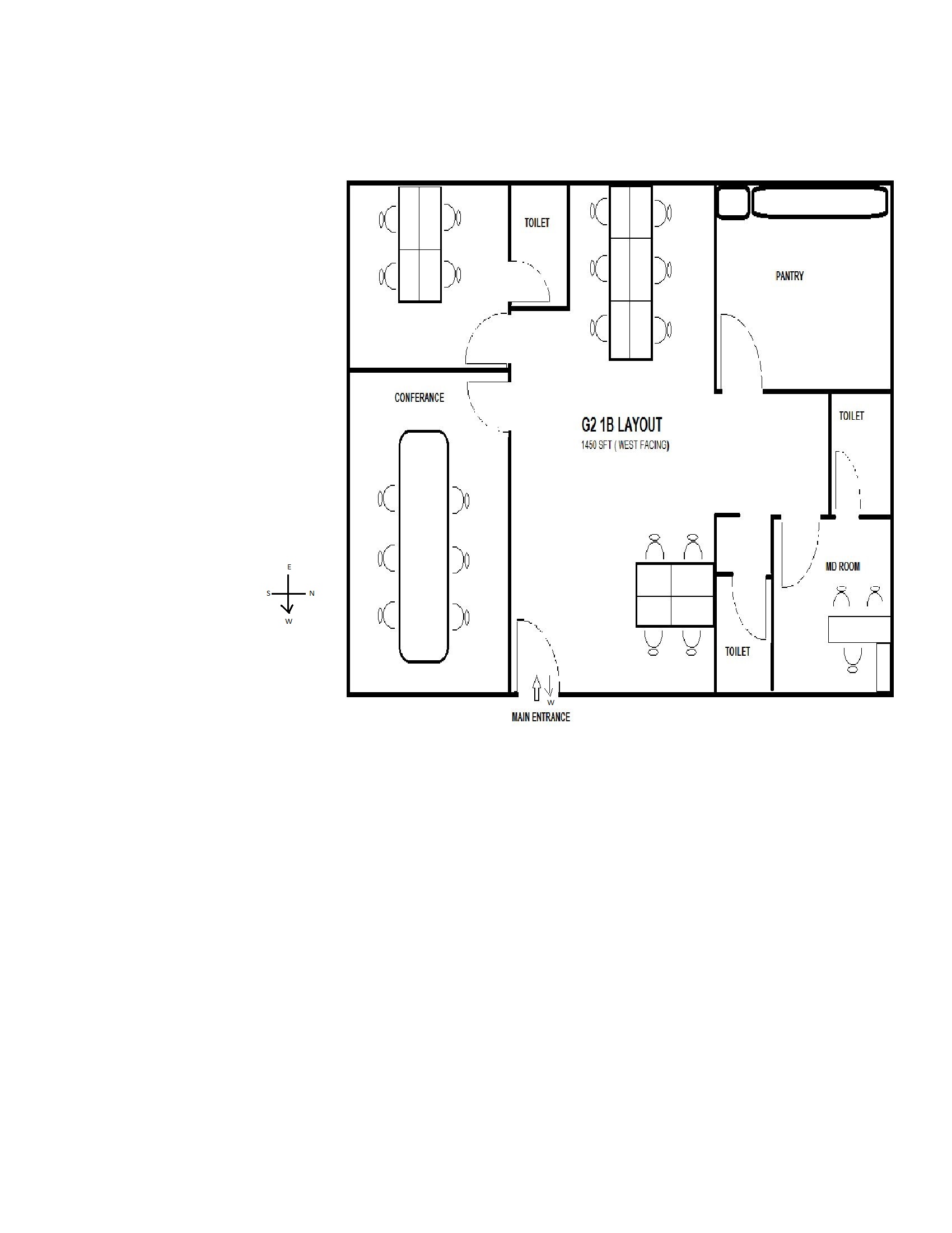
Plug and Play Office Space Having 37 Work Stations, 2 Manager Cabins, 1 Conference Room, Pantry, Lift, Reception, 3 c....