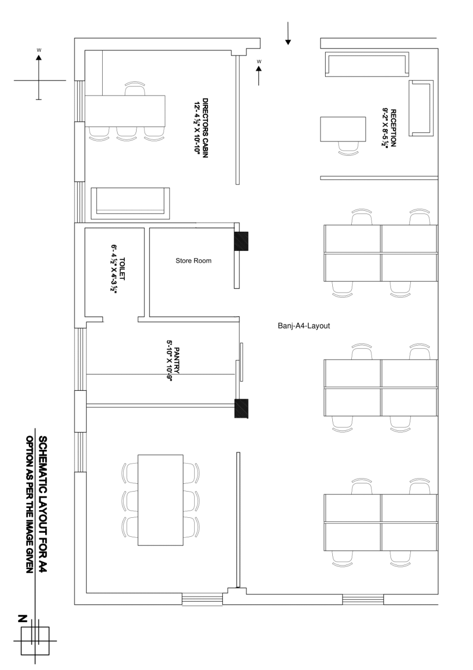
Plug and Play Office Space Having 12 Workstations, 1 Manager Cabin, 1 Conference Room, Pantry, Reception, 1 Washroom, 1 Car Parking, Onsite Manager, Security, 100 DG Backup.








Bare Shell Office Space Having 1 car Parking, 2 Washrooms, Lift, Security, Onsite Manager, 100 DG backup..

Plug and Play Office Space Having 14 Workstations, 2 Manager Cabins, 1 Conference Room, Reception, Pantry, Ac, Lift, ....