Plug and Play Office Space Having 14 Workstations, 1 manager Cabin, 1 Conference Room, Reception, Pantry, Lift, Ac, 3 Washrooms, 1 car Parking, Security, Onsite Manager, 100 DG Backup.











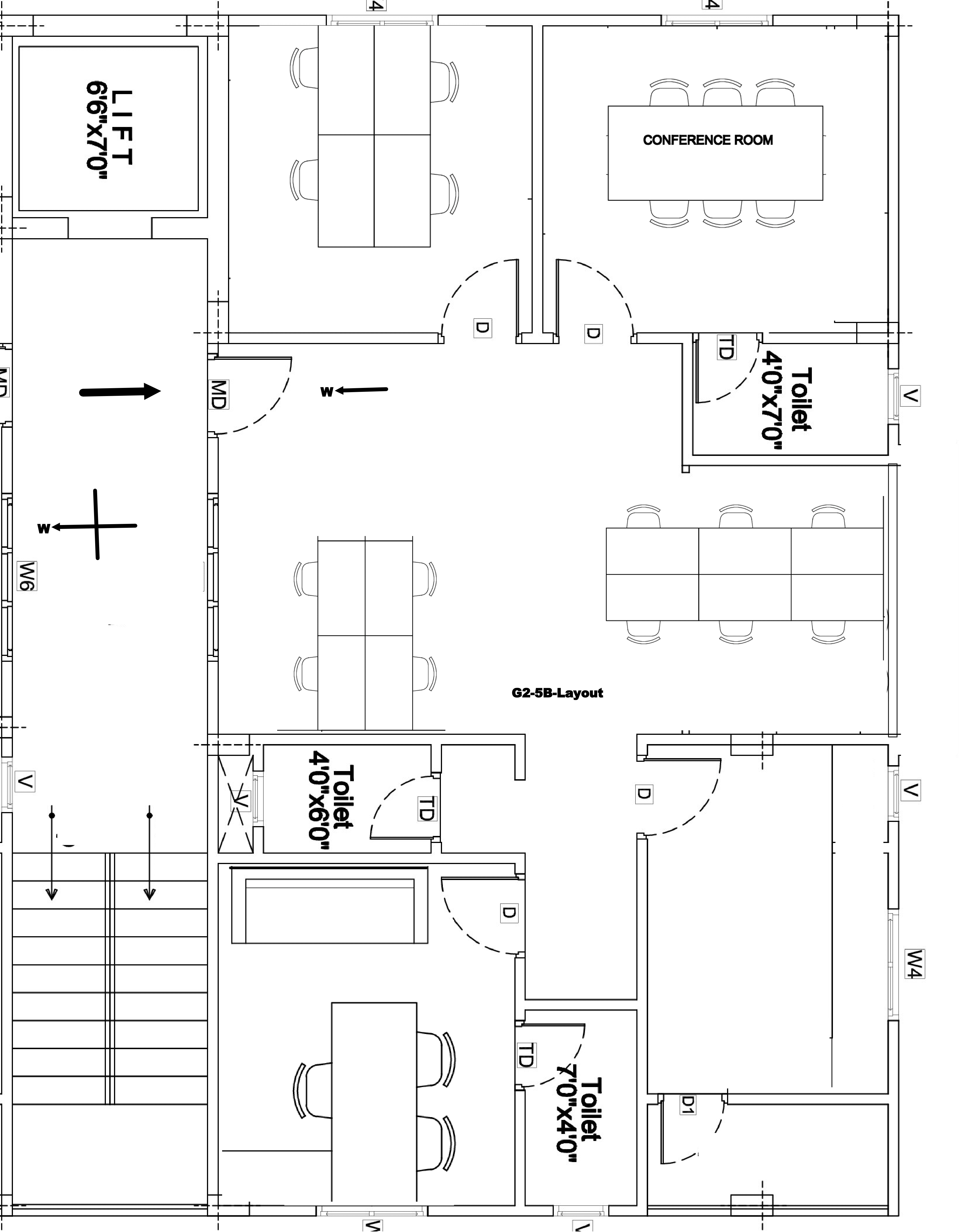
Plug and Play Office Space Having 24 Workstations, 2 manager cabins, 1 Conference Room, Reception, Pantry, Ac, Lift, ....