Plug and Play Office having 12 Work Stations, 1 Manager cabin, 1 Conference Room, Pantry, reception, Ac, Lift, 1 washroom, 1 Car Parking, Onsite Manager, Security, 100 DG Backup.









Plug and Play Office Space having 12 Workstations, 1 Manager Cabin, 1 Discussion Room, 1 Conference Room, Reception, ....

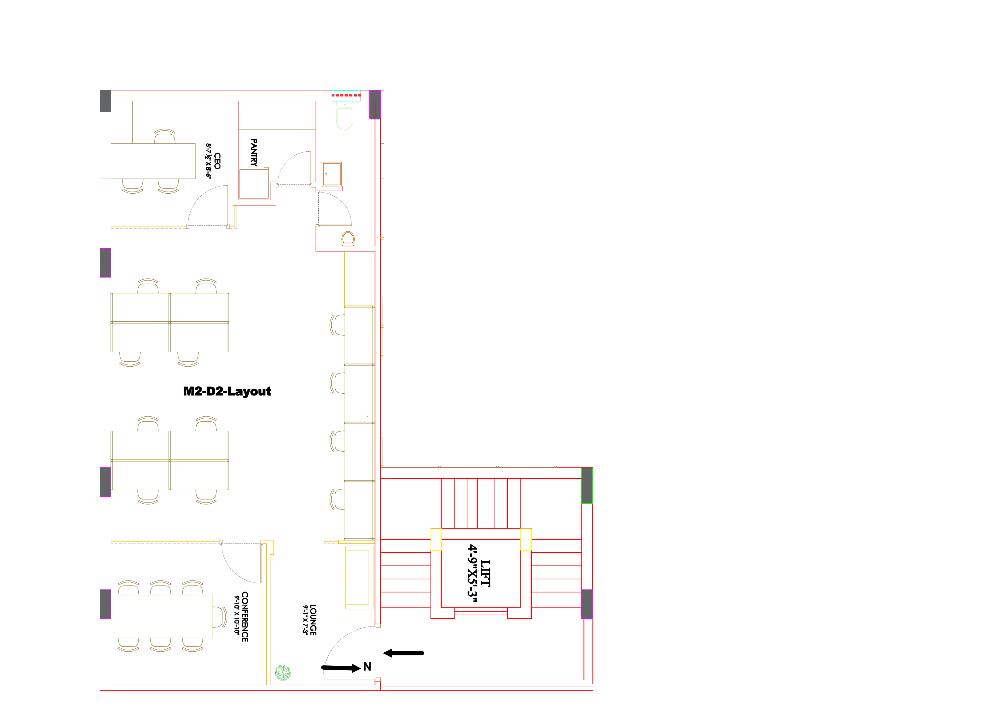
Plug and Play Office Space Having 19 Workstations, 1 Manager Cabin, 1 Discussion Room, 1 Conference Room, Reception, ....

Plug and Play Office Space Having 30 Workstations, 1 Manager Cabin, 1 Discussion Room, 1 Conference room, Reception, ....